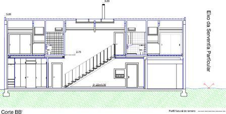
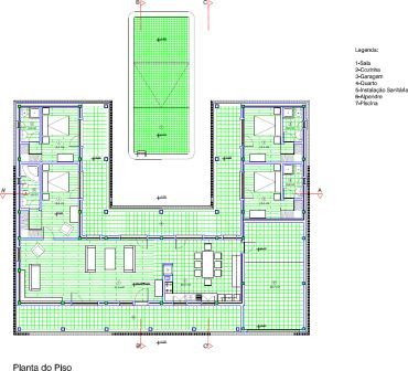
2006
Projeto de Arquitetura de moradia unifamiliar em Lagoa da Palha, Palmela, em agosto de 2006. Ampliação e reconversão de armazém existente.










Projeto de Arquitetura de moradia unifamiliar em Casal do Redinho, Alfarelos, em dezembro de 2006. Projeto de raiz.














