2000
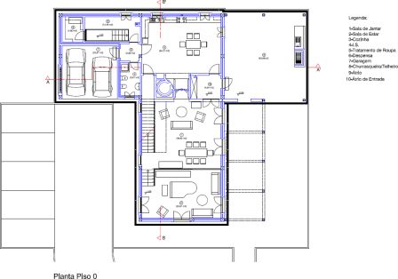
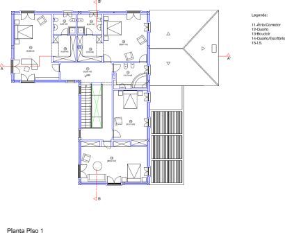
Projeto de Arquitetura de moradia unifamiliar em Moinho da Gândara, Figueira da Foz, em novembro de 2000. Projeto de raiz.






Projeto de Arquitetura de moradia unifamiliar em Moinho da Gândara, Figueira da Foz, em novembro de 2000. Projeto de raiz.





